direct naar inhoud van Toelichting
Plan: Rading 198
Status: ontwerp
Plantype: wijzigingsplan
IMRO-idn: NL.IMRO.1696.WP24Rading1982021-on01

Toelichting

Hoofdstuk 1 Inleiding

1.1 Aanleiding

Aan de Nieuw Loosdrechtsedijk 179-181 in Loosdrecht is een melkveehouderij aanwezig. In de nabije toekomst zal het bedrijf daar vertrekken om plaats te maken voor natuurontwikkeling binnen het Natura 2000-gebied Oostelijke Vechtsplassen, welke is geïnitieerd door de provincie Noord-Holland. Hierbij zal het bedrijf een nieuwe plek krijgen op de bestaande agrarische bedrijfslocatie aan de Rading 198 in Loosdrecht. Met de bedrijfsverplaatsing zal de nu nog gangbare melkveehouderij omschakelen naar een volledig biologische bedrijfsvoering waarbij sprake is van kringlooplandbouw. Omdat de beoogde bedrijfsvoering te kunnen realiseren is een nieuw gebouw nodig voor de opslag van mest, evenals een nieuwe werktuigenberging. Ook is meer ruimte nodig voor de opslag van ruwvoer. Deze nieuwe voorzieningen zijn niet inpasbaar binnen het huidige, agrarische bouwperceel voor de Rading 198. Voor de bedrijfsverplaatsing en -omschakeling is het dan ook gewenst om het bouwperceel te vergroten. Daarvoor is een wijziging van het geldende bestemmingsplan nodig.

1.2 Ligging en begrenzing

Het perceel Rading 198 is gelegen ten zuidoosten van het landelijk gebied van Loosdrecht, op ongeveer 3,5 km afstand van Oud-Loosdrecht en ongeveer 1,5 km van Nieuw-Loosdrecht. Het plangebied grenst direct aan het buitengebied van Hilversum. De weg 'de Rading' vormt de gemeentegrens tussen de gemeenten Hilversum en Wijdemeren, waar Loosdrecht een dorp van is.

afbeelding "i_NL.IMRO.1696.WP24Rading1982021-on01_0001.png"

Ligging in de omgeving

Het plangebied van dit wijzigingsplan wordt alleen gevormd door het genoemde perceel, voor zover het gaat om: het huidige agrarische bouwvlak en de uitbreiding van het huidige bouwvlak.

1.3 Geldend bestemmingsplan

Voor het plangebied geldt het bestemmingsplan 'Loosdrecht landelijk gebied noordoost - 2012', vastgesteld door de gemeenteraad op 2 februari 2017.

In het bestemmingsplan geldt voor het plangebied de bestemming 'Agrarisch met waarden - Natuur- en landschapswaarden'. Middels een bouwvlak is voorzien in een agrarisch bouwperceel. Binnen het bouwvlak is voorzien in een bedrijfswoning en meerdere gebouwen ten behoeve van het bedrijf.

Verder rust op het perceel deels de dubbelbestemming 'Waarde - Archeologie 4' en deels 'Waarde - Archeologie - 5'. Hiermee zijn deze gronden mede bestemd voor de bescherming en veiligstelling van archeologische waarden.

afbeelding "i_NL.IMRO.1696.WP24Rading1982021-on01_0002.png"

Uitsnede plankaart met het plangebied globaal in rood omkaderd

De nieuw te bouwen mestopslag en werktuigenberging en de ruwvoeropslag zijn buiten het bouwvlak geprojecteerd. Het geldende bestemmingsplan maakt deze bouwwerken daardoor niet mogelijk. In het bestemmingsplan is een wijzigingsbevoegdheid opgenomen voor het vergroten van een bouwvlak binnen de bestemming 'Agrarisch met waarden - Natuur- en landschapswaarden'. Deze wijzigingsbevoegdheid is toereikend om in alle drie de gebouwen te voorzien.

In hoofdstuk 4 zal op de bijbehorende voorwaarden worden ingegaan.

1.4 Leeswijzer

Deze toelichting vangt in hoofdstuk 2 aan met een beschrijving van het initiatief. In hoofdstuk 4 vindt de toetsing aan de voorwaarden van de wijzigingsbevoegdheden plaats. Vervolgens wordt in hoofdstuk 5 de uitvoerbaarheid aangetoond en wordt ingegaan op enkele, andere planologische aspecten. In hoofdstuk 6 wordt de juridische planopzet toegelicht. Afsluitend zijn de resultaten van inspraak en overleg opgenomen.

Hoofdstuk 2 Beschrijving van het initiatief

2.1 Omgeving

Het plangebied is gelegen in het landelijke buitengebied tussen Loosdrecht en Hilversum. Ten noorden/noordoosten van het plangebied bevindt zich de kern van Nieuw-Loosdrecht. Het landschap is te typeren als een slagenlandschap. Dit landschapstype kenmerkt zich door een langgerekte strokenverkaveling voornamelijk ingericht als weide en een fijnmazig slotenpatroon. Het betreft voornamelijk een open landschap met boomrijen tussen enkele percelen. In de directe omgeving van het plangebied is relatief weinig bebouwing aanwezig. Bebouwde percelen komen dan ook schaars voor in de omgeving van het plangebied, en doorgaans gaat het dan om agrarische erven. Verder zijn de wegen voornamelijk recht en lang. Ten noordoosten van het plangebied bevindt zich een sportvereniging en het vliegveld Hilversum. Ten westen van het plangebied, aan de Rading 200, is een agrarisch bedrijf gericht op akker- en/of tuinbouw in combinatie met het fokken en houden van dieren aanwezig.

afbeelding "i_NL.IMRO.1696.WP24Rading1982021-on01_0003.png"

Luchtfoto omgeving in rood omkaderd het plangebied

2.2 Plangebied

Het plangebied is gelegen aan de lange en doodlopende erftoegangsweg de Rading. Deze weg is via een rotonde aangesloten op de Molenmeent in de gemeente Wijdemeren en de Loosdrechtseweg in de gemeente Hilversum. Het plangebied en het perceel ernaast zijn de enige agrarische erven aan het eind van de erftoegangsweg. Het plangebied wordt alleen ontsloten door de Rading.

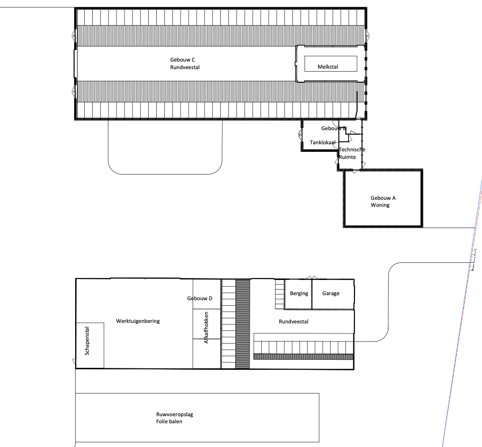
Aan de zuidzijde van het plangebied is een bedrijfswoning aanwezig. Deze bedrijfswoning is via een aanbouw geschakeld aan een rundveestal. Ten westen van de woning en de stal staat nog een bedrijfsgebouw. Binnen dit gebouw bevindt zich een schapen- en rundveestal, werktuigenberging en garage. De grond naast dit gebouw wordt gebruikt voor ruwvoeropslag en foliebalen (zie situatietekening).

Het overige deel van het plangebied, waar de nieuwe bebouwing geprojecteerd is, bestaat momenteel enkel uit weiland. Op enkele rijen bomen na wordt het plangebied verder omgeven door weilanden waar relatief weinig perceelsrandbeplantingen aanwezig is.

afbeelding "i_NL.IMRO.1696.WP24Rading1982021-on01_0004.png"

Luchtfoto met het plangebied globaal in rood omkaderd

afbeelding "i_NL.IMRO.1696.WP24Rading1982021-on01_0005.png"

Situatietekening bestaande situatie (zie Bijlage 1 voor hele tekening op schaal)

2.3 Voornemen

De toekomstige gebruiker van het plangebied is momenteel gevestigd aan de Nieuw Loosdrechtsedijk 179-181 in Loosdrecht. Hier is een gangbare melkveehouderij aanwezig. Het bedrijf is hier gelegen binnen Natura 2000-gebied Oostelijke Vechtplassen. De provincie Noord-Holland heeft de wens hier natuur te gaan ontwikkelen. In dat kader is overeenstemming bereikt tussen de eigenaar van het bedrijf en de provincie Noord-Holland om het bedrijf te gaan verplaatsen naar het plangebied, naar de Rading 198 in Loosdrecht. Met deze verplaatsing zal de bedrijfsvoering een biologische bedrijfsvoering worden, waarbij sprake is van kringlooplandbouw. Dit is een vorm van duurzame landbouw waarbij de kringloop van stoffen gesloten is. Dit houdt in dat alle stoffen die door de landbouw uit een gebied verdwijnen ook weer teruggebracht worden in het gebied.

Om de beoogde omschakeling te bereiken zal de vloer van de bestaande rundveestal in het plangebied vervangen moeten worden door een dichte vloer om de urine en de vaste (ruige) mest te kunnen scheiden. Het vergunde aantal melk- en kalfkoeien blijft hierbij gelijk: 84 dieren. De ruige mest zal worden afgevoerd uit de stal. Voor de opslag daarvan is nu geen voorziening aanwezig op het perceel. Daarom is een nieuwe, overkapte mestloods nodig, met een grondbeslag van circa 400 m2.

Het bedrijf zal in de nieuwe situatie over een huiskavel beschikken van 35 hectare. In de toekomst en in het kader van natuurbeheer, bestaat de mogelijkheid dat het bedrijf, in overleg met vereniging Natuurmonumenten, nog eens 65 hectare aan gronden in beheer kan krijgen. Dit vraagt om meer ruimte om werktuigen te kunnen stallen en om ruimte om het maaisel/strooisel (in ronde balen) op te kunnen slaan. Daarom is ook een nieuwe werktuigenberging gewenst.

Verder vraagt de gewijzigde bedrijfsvoering in het plangebied om meer ruimte voor het opslaan van ruwvoer in sleufsilo’s of op kuilvoerplaten. Hiervoor is ongeveer 900 m2 aan ruimte nodig.

Voor het initiatief is geen ruimte beschikbaar binnen het huidige bouwvlak. De meest geschikte plek om de nieuwe bebouwing te realiseren is vrijwel direct achter de bestaande bebouwing. Voor de nieuwe mestloods is geschikte ruimte aanwezig in het verlengde van de ligboxenstal. Voor de nieuwe werktuigenberging is ruimte achter de bestaande werktuigenberging. Achter de nieuwe werktuigenberging kan vervolgens de nieuwe ruwvoeropslag worden gerealiseerd. Hiervoor dient wel het huidige bouwvlak vergroot te worden, aangezien er enkel binnen het bouwvlak gebouwd mag worden. Aan de bestaande bebouwing en het gebruik ervan verandert verder niets. Voor het initiatief wordt het bestemmingsplan voor het perceel gewijzigd en daarmee zal het bouwvlak vergroot worden.

In het kader van duurzaamheid zullen zonnepanelen toegepast worden op de nieuwbouw. Op de bestaande bebouwing is dit constructietechnisch niet mogelijk. Bij een verdere realisatie van het plan zal de optie voor een kleine windmolen (tot 15 m), voor de opwekking van elektriciteit, onderzocht worden. Er is geen sprake van mestvergisting.

afbeelding "i_NL.IMRO.1696.WP24Rading1982021-on01_0006.png" Nieuwe situatie (zie Bijlage 1 voor hele tekening op schaal)

afbeelding "i_NL.IMRO.1696.WP24Rading1982021-on01_0007.png"

Uitbreiding van het bouwvlak binnen het plangebied

Qua landschappelijke inpassing ligt het erf, samen met het erf van het agrarisch bedrijf aan de Rading 200, in een open agrarisch landschap waar overige bebouwing in de directe omgeving vrijwel afwezig is. De dichtstbijzijnde bebouwing is die van de sportvereniging en ligt op meer dan 250 meter afstand van het plangebied. Verder is voornamelijk het erf aan de Rading 200 omgeven door forse bomen rond de perceelsranden. Op het plangebied zelf staan ook enkele kleinere bomen en overige beplanting op de perceelsranden.

Verder wordt de nieuwe bebouwing vrijwel direct achter de bestaande bebouwing gesitueerd. Hierdoor blijft het vooraanzicht van het erf vanaf de weg grotendeels onveranderd. Ook zal de openheid van het landschap gewaarborgd blijven door de situering van de nieuwe bebouwing en de afwezigheid van overige bebouwing in de omgeving. Voor de nieuwe bebouwing is de landschappelijke kwaliteit op het erf daarmee van voldoende niveau.

Hoofdstuk 3 Beleidskader

3.1 Rijksbeleid

3.1.1 Nationale Omgevingsvisie

De Nationale Omgevingsvisie (NOVI) is vastgesteld op 11 september 2020. De NOVI geeft richting en helpt om keuzes te maken; te kiezen voor slimme combinaties van functies; uit te gaan van de specifieke kenmerken en kwaliteiten van gebieden. In totaal zijn er 21 nationale belangen gevormd:

  • 1. Bevorderen van een duurzame ontwikkeling van Nederland als geheel en van alle onderdelen van de fysieke leefomgeving.
  • 2. Realiseren van een goede leefomgevingskwaliteit.
  • 3. Waarborgen en versterken van grensoverschrijdende en internationale relaties.
  • 4. Waarborgen en bevorderen van een gezonde en veilige fysieke leefomgeving.
  • 5. Zorg dragen voor een woningvoorraad die aansluit op de woonbehoeften.
  • 6. Waarborgen en realiseren van een veilig, robuust en duurzaam mobiliteitssysteem.
  • 7. In stand houden en ontwikkelen van de hoofdinfrastructuur voor mobiliteit.
  • 8. Waarborgen van een goede toegankelijkheid van de leefomgeving.
  • 9. Zorg dragen voor nationale veiligheid en ruimte bieden voor militaire activiteiten.
  • 10. Beperken van klimaatverandering.
  • 11. Realiseren van een betrouwbare, betaalbare en veilige energievoorziening, die in 2050 CO2-arm is, en de daarbij benodigde hoofdinfrastructuur.
  • 12. Waarborgen van de hoofdinfrastructuur voor transport van stoffen via (buis)leidingen.
  • 13. Realiseren van een toekomstbestendige, circulaire economie.
  • 14. Waarborgen van de waterveiligheid en de klimaatbestendigheid (inclusief vitale infrastructuur voor water en mobiliteit).
  • 15. Waarborgen van een goede waterkwaliteit, duurzame drinkwatervoorziening en voldoende beschikbaarheid van zoetwater.
  • 16. Waarborgen en versterken van een aantrekkelijk ruimtelijk-economisch vestigingsklimaat.
  • 17. Realiseren en behouden van een kwalitatief hoogwaardige digitale connectiviteit.
  • 18. Ontwikkelen van een duurzame voedsel- en agroproductie.
  • 19. Behouden en versterken van cultureel erfgoed en landschappelijke en natuurlijke kwaliteiten van (inter)nationaal belang.
  • 20. Verbeteren en beschermen van natuur en biodiversiteit.
  • 21. Ontwikkelen van een duurzame visserij.

Om ook daadwerkelijk uitvoering te geven aan de NOVI, is de Uitvoeringsagenda 2021-2024 opgesteld. Hierin zijn vier prioriteiten benoemd:

  • 1. Ruimte voor klimaatadaptatie en energietransitie.
  • 2. Duurzaam economisch groeipotentieel.
  • 3. Sterke en gezonde steden en regio's.
  • 4. Toekomstbestendige ontwikkeling van het landelijk gebied.

De NOVI is een permanent en aanpasbaar proces. Er wordt uitgegaan van een terugkerende cyclus van vier jaar. Jaarlijks, in het voorjaar, is er een nationale NOVI-conferentie over de voortgang van de uitvoering, nieuwe ontwikkelingen en inzichten. Ook wordt een tweejaarlijkse monitor uitgevoerd door het Planbureau voor de Leefomgeving. Elke vier jaar vindt een uitgebreide beleidsevaluatie plaats, evenals een onderzoek naar de mening van burgers en wordt de NOVI zo nodig aangepast.

Toetsing

Uit de NOVI volgen geen uitgangspunten en/of randvoorwaarden voor de herontwikkeling van het plangebied. Met onderhavige ontwikkeling zijn geen nationale belangen in het geding.

3.1.2 Besluit algemene regels ruimtelijke ordening

Met het vastgestelde Besluit algemene regels ruimtelijke ordening (30 december 2011), ook wel Barro genoemd, geeft het Rijk algemene regels voor bestemmingsplannen en wordt een aantal van de nationale ruimtelijke belangen uit de voormalige Nota Ruimte gewaarborgd. Doel van dit besluit is bepaalde onderwerpen uit de SVIR te verwezenlijken, dan wel te beschermen. Het gaat hierbij om de volgende onderwerpen:

  • rijksvaarwegen;
  • hoofdwegen en hoofdspoorwegen; elektriciteitsvoorzieningen;
  • buisleidingen van nationaal belang van gevaarlijke stoffen; ecologische hoofdstructuur;
  • primaire waterkeringen buiten het kustfundament, en IJsselmeergebied (uitbreidingsruimte),

Toetsing

Gelet op de ligging van het plangebied, alsmede de aard en omvang van de beoogde planontwikkeling dat in het voorliggende wijzigingsplan mogelijk wordt gemaakt, wordt geconcludeerd dat er geen strijdigheid is met het nationaal ruimtelijk belang, zoals neergelegd in het Barro. Voornoemde onderwerpen hebben geen betrekking op het plangebied.

3.2 Provinciaal beleid

3.2.1 Omgevingsvisie NH2050

Op 19 november 2018 hebben de Provinciale Staten van Noord-Holland de Omgevingsvisie NH2050 vastgesteld. Hierin staat de visie op de fysieke leefomgeving beschreven.

De provincie wil balans tussen economische groei en leefbaarheid. Dit betekent dat in heel Noord- Holland een basiskwaliteit van de leefomgeving wordt gegarandeerd. Er zijn randvoorwaarden geformuleerd hoe om te gaan met klimaatverandering. De provincie ontwikkelt zoveel mogelijk natuurinclusief en met behoud van (karakteristieke) landschappen, clustert ruimtelijke economische ontwikkelingen rond infrastructuur en houdt rekening met de ondergrond.

In de visie zijn 5 bewegingen met ontwikkelprincipes beschreven voor de ontwikkeling van de leefomgeving:

  • Dynamisch schiereiland. Hierin is het benutten van de unieke ligging van Noord-Holland, te midden van water, leidend.
  • Metropool in ontwikkeling. Hierin wordt beschreven hoe de Metropoolregio Amsterdam steeds meer als één stad functioneert.
  • Sterke kernen, sterke regio’s, gaat over de ontwikkeling van centrumgemeenten die de gehele regio waarin ze liggen vitaal houden.
  • Nieuwe energie, benut de economische kansen van de energietransitie.
  • Natuurlijk en vitaal landelijke omgeving, staan het ontwikkelen van natuurwaarden en een economisch duurzame agrarische sector centraal.

Deze visie geeft enerzijds richting, en daarmee houvast naar een onbekende toekomst, en anderzijds voldoende ruimte en handelingsperspectief om te anticiperen op nieuwe ontwikkelingen. De visie presenteert geen eindbeeld voor 2050, maar laten in algemene zin zien wat de ontwikkelprincipes zijn voor de hele provincie om een hoge leefomgevingskwaliteit te bieden.

Toetsing

Dit wijzigingsplan draagt bij een natuurlijk en vitaal landelijk omgeving. Een bedrijf wordt voor natuurontwikkeling binnen het Natura 2000-gebied Oostelijke Vechtsplassen verplaatst naar het plangebied. Dat bedrijf gaat in het plangebied gebruik maken van de aanwezige, bestaande agrarische bedrijfslocatie. Met die verplaatsing zal de nu nog gangbare melkveehouderij omschakelen naar een volledig biologische bedrijfsvoering waarbij sprake is van kringlooplandbouw. Op deze manier draagt dit wijzigingsplan zowel bij aan natuurontwikkeling als aan een verduurzaming van de agrarische sector.

3.2.2 Omgevingsverordening NH2020

In de Omgevingsverordening NH2020 zijn regels samengevoegd op het gebied van natuur, milieu, mobiliteit, erfgoed, ruimte en water. Hierdoor is het makkelijker geworden om te zien welke regels waar gelden. Deze omgevingsverordening is vastgesteld op 22 oktober 2020, en is op 17 november 2020 in werking getreden. Deze verordening ziet erop toe dat het provinciale beleid uit de provinciale omgevingsvisie operationeel wordt. Navolgend worden de voor het plangebied relevante bepalingen besproken.

Artikel 6.33 Agrarische bedrijven

Een ruimtelijk plan kan ter plaatse van het werkingsgebied agrarische bedrijven voorzien in agrarische bedrijven, waarbij geldt dat:

  • a. bebouwing wordt geconcentreerd in een bouwperceel, waarbij de omvang van het bouwperceel ten hoogste 2 hectare bedraagt.
  • b. bij het toestaan van een nieuw bouwperceel wordt gemotiveerd waarom niet op bestaande bouwpercelen in de behoefte kan worden voorzien, waarbij ingegaan wordt op de mogelijkheden tot hergebruik van bouwpercelen die niet meer voor de agrarische functie worden benut en op het combineren van functies op bestaande bouwpercelen.
  • c. in afwijking op onderdeel a is een omvang van het bouwperceel van meer dan 2 hectare toegestaan, indien de uitbreiding noodzakelijk is voor het agrarisch productieproces en het geen glastuinbouwbedrijf betreft.
  • d. in afwijking op onderdeel a geldt dat de omvang van een bouwperceel voor een glastuinbouwbedrijf meer kan bedragen dan 2 hectare, indien het bedrijf grenst aan bestaand stedelijk gebied, niet grenst aan andere glastuinbouwbedrijven, sprake is van grondgebonden teelt en sprake is van aantoonbare duurzame synergie met aangrenzende stedelijke functies.
  • e. per volwaardig agrarisch bedrijf kan ten hoogste één bedrijfswoning worden toegestaan.
  • f. in afwijking van onderdeel e geldt dat een extra bedrijfswoning kan worden toegestaan, indien dit noodzakelijk is voor het toezicht op de bedrijfsvoering.
  • g. ten behoeve van de bedrijfsvoering kan worden voorzien in de huisvesting van tijdelijke werknemers, indien:
    • 1. de huisvesting wordt voorzien binnen het bouwperceel, en;
    • 2. het een ondergeschikte functie ten behoeve van een volwaardig agrarisch bedrijf betreft.
  • h. indien het agrarisch bedrijf is gelegen in veenpolderlandschap, bevat het ruimtelijk plan een verbod op het scheuren van grasland, tenzij wordt aangetoond dat dit bijdraagt aan meer biodiversiteit in het grasland en daarbij bodemerosie en extra CO2 uitstoot wordt vermeden.

Toetsing

Onderhavig plan voorziet niet in een nieuw agrarisch bedrijf; enkel in de verplaatsing van het agrarisch bedrijf naar een nieuwe locatie, waar reeds een agrarisch bedrijf toegestaan is. Wel voorziet onderhavig plan in een uitbreiding van het bouwperceel. Het nieuwe bouwperceel heeft een oppervlakte van 9280 m2. Daarmee wordt de grens van 2 hectare niet overschreden. Aan de voorwaarden van de aangehaalde bepaling wordt daarmee voldaan.

Artikel 6.46 Bijzonder provinciaal landschap

  • 1. De kernkwaliteiten van het Bijzonder provinciaal landschap zijn vastgelegd in Bijlage 6.
  • 2. Een ruimtelijk plan ter plaatse van het werkingsgebied Bijzonder provinciaal landschap bevat regels ter bescherming van de voorkomende kernkwaliteiten.
  • 3. In afwijking van artikel 6.3 bevat het ruimtelijk plan geen regels die een nieuwe stedelijke ontwikkeling mogelijk maken.
  • 4. Het ruimtelijk plan kan regels bevatten die een andere nieuwe ruimtelijke ontwikkeling dan een nieuwe stedelijke ontwikkeling mogelijk maakt, mits deze ontwikkeling de voorkomende kernkwaliteiten niet aantast.
  • 5. De toelichting op het ruimtelijk plan bevat een beschrijving van de voorkomende kernkwaliteiten en een motivering van de wijze waarop wordt voldaan aan het tweede en, indien van toepassing, het vierde lid.
  • 6. Indien uit de motivering volgt dat maatregelen noodzakelijk zijn om te voldoen aan het bepaalde in het vierde lid, dan dient de uitvoering hiervan te zijn geborgd bij de vaststelling van het ruimtelijk plan.
  • 7. In afwijking van het vierde lid kan het ruimtelijk plan regels bevatten die de volgende ruimtelijke ontwikkelingen mogelijk maken:
    • a. een uitbreiding van een agrarisch bouwperceel tot maximaal twee hectare; of
    • b. nieuwe bebouwings- en functiemogelijkheden op grond van artikel 6.33, eerste lid, onder e en f en artikel 6.33, tweede en derde lid.
  • 8. In afwijking van het derde en vierde lid kan het ruimtelijk plan een nieuwe stedelijke ontwikkeling of een andere nieuwe ruimtelijke ontwikkeling die de kernkwaliteiten aantast mogelijk maken, indien:
    • a. er sprake is van groot openbaar belang;
    • b. er geen reële alternatieven zijn; en
    • c. de aantasting zoveel mogelijk wordt beperkt en de aantasting wordt gecompenseerd.
  • 9. In afwijking van het derde en vierde lid kan het ruimtelijk plan voorzien in woningbouw overeenkomstig de afspraken tussen Rijk, provincie en betrokken gemeenten met betrekking tot de Pilot Waterland.
  • 10. Gedeputeerde Staten kunnen nadere regels stellen over de motivering als bedoeld in het vijfde lid en over de wijze van compensatie als bedoeld in het achtste lid, aanhef en onderdeel c.
  • 11. Gedeputeerde Staten kunnen de kernkwaliteiten zoals opgenomen in Bijlage 6 wijzigen.

Het plangebied ligt in het Bijzonder provinciaal landschap Vechtstreek-Zuid. De voor het plangebied relevante kernkwaliteiten zijn als volgt:

  • Strokenverkaveling veenweidepolder.
  • Open ruimte en vergezichten veenpolders.

Toetsing

Onderhavig plan voorziet in de uitbreiding van het bouwvlak, zodat voorzien kan worden in een werktuigenberging, vaste mestopslag en ruwvoeropslag. Hierbij wordt binnen de bestaande breedte van de verkaveling gebleven. Het aanwezige, waardevolle verkavelingspatroon wordt op die manier niet aangetast (doorsneden) door het planvoornen. Doordat dit plan leidt tot een toename van bouwmogelijkheden leidt het wel tot een (zeer beperkte) afname van de open ruimte en de vergezichten in de polder ter plaatse. Omdat het hier echter een een uitbreiding van een agrarisch bouwperceel tot maximaal twee hectare betreft, is dat een aantasting die is toegestaan op basis van de Omgevingsverordening NH2020 (lid 7 van artikel 6.46).

Artikel 6.43 Natuurnetwerk Nederland en natuurverbindingen

  • 1. De wezenlijke kenmerken en waarden als bedoeld in dit artikel zijn vastgelegd in bijlage 5.
  • 2. Een ruimtelijk plan ter plaatse van het werkingsgebied Natuurnetwerk Nederland en het werkingsgebied natuurverbindingen strekt in ieder geval tot de bescherming, instandhouding en ontwikkeling van de wezenlijke kenmerken en waarden van de gebieden.
  • 3. Het ruimtelijk plan stelt in ieder geval regels in het belang van de bescherming, instandhouding en ontwikkeling van de wezenlijke kenmerken en waarden van de gebieden. Bij het stellen van deze regels moeten de wezenlijke kenmerken en waarden van de gebieden in acht worden genomen.
  • 4. Het ruimtelijk plan maakt geen nieuwe activiteiten mogelijk die per saldo leiden tot een significante aantasting van de wezenlijke kenmerken en waarden, of tot een vermindering van de oppervlakte van het Natuurnetwerk Nederland of de natuurverbindingen, of van de samenhang tussen die gebieden.
  • 5. In afwijking van het vierde lid kan het ruimtelijk plan nieuwe activiteiten mogelijk maken, indien:
    • a. er sprake is van een groot openbaar belang;
    • b. er geen reële alternatieven zijn; en
    • c. de negatieve effecten op de wezenlijke kenmerken en waarden, oppervlakte en samenhang worden beperkt en de overblijvende effecten gelijkwaardig worden gecompenseerd.
  • 6. Gedeputeerde Staten kunnen de begrenzing van het werkingsgebied Natuurnetwerk Nederland en het werkingsgebied natuurverbindingen wijzigen:
    • a. ten behoeve van een verbetering van de samenhang of een betere ruimtelijke inpassing van het Natuurnetwerk Nederland, voor zover:
      • de wezenlijke kenmerken en waarden van het Natuurnetwerk Nederland of de natuurverbinding worden behouden; en
      • de oppervlakte van het Natuurnetwerk Nederland ten minste gelijk blijft; of
    • b. ten behoeve van een kleinschalige ontwikkeling, voor zover:
      • de aantasting van de wezenlijke kenmerken en waarden en de samenhang van het Natuurnetwerk Nederland of de natuurverbinding beperkt is;
      • de ontwikkeling per saldo gepaard gaat met een versterking van de wezenlijke kenmerken en waarden van het Natuurnetwerk Nederland of de natuurverbinding, of een vergroting van de oppervlakte van het Natuurnetwerk Nederland; en
      • de oppervlakte van het Natuurnetwerk Nederland ten minste gelijk blijft; of
    • c. ten behoeve van de toepassing van het vijfde lid.
  • 7. Gedeputeerde Staten kunnen de begrenzing van het werkingsgebied Natuurnetwerk Nederland en het werkingsgebied natuurverbindingen wijzigen ter verbetering van kennelijke onjuistheden.
  • 8. Gedeputeerde Staten kunnen nadere regels stellen aan de toelichting van het ruimtelijk plan en aan de wijze van compensatie als bedoeld in het vijfde lid, aanhef en onder c.

Het plangebied ligt in het Natuurnetwerk Nederland. De uitbreiding van het bouwvlak vindt wel plaats binnen het Natuurnetwerk Nederland, in het gebied Oostelijke Vechtplassen (A13). De kernkwaliteiten hiervoor zijn als volgt:

  • Veenlandschap met water- en verlandingsvegetaties.
  • Open landschap met extensieve graslanden.

Toetsing

Dit wijzigingsplan leidt (in ieder geval) tot een tot een vermindering van de oppervlakte van het Natuurnetwerk Nederland. Daarom is die wijziging pas mogelijk als het NNN herbegrensd is door de provincie Noord-Holland voor onderhavig initiatief.

Conclusie

Dit wijzigingsplan is in overeenstemming met de Omgevingsverordening NH2020 als de NNN daarvoor herbegrensd is.

3.3 Gemeentelijk beleid

3.3.1 Omgevingsvisie Wijdemeren 2040

De Omgevingsvisie Wijdemeren 2040 is in ontwerp sinds 18 mei 2021. In de omgevingsvisie is beschreven hoe Wijdemeren er in 2040 uitziet. De ambitie is om de kwaliteiten als groenblauwe parel in het stedelijk gebied van de metropoolregio door te ontwikkelen. Zo wil de gemeente dat in 2040 ieder dorp in Wijdemeren zich vanuit het eigen karakter verder ontwikkeld heeft. De gemeente koestert het aanzien en de cultuur van de dorpen. Verder is de visie dat Wijdemeren in 2040 nog steeds bekend staat om de prachtige natuur in het Vechtplassengebied. Het natuurnetwerk is verder ontwikkeld, de biodi- versiteit verbeterd en de plassen hebben een goede waterkwaliteit. In het Veenweidegebied wordt samen met de grondeigenaren en gebruikers gekeken naar innovatieve oplossingen in de landbouw en bij het tegengaan van bodemdaling. De natuur is in balans met ander landgebruik in onze gemeente, zoals landbouw, recreatie, woon- en werklocaties. Verder is de ambitie dat Wijdemeren in 2040 CO2-neutraal is. Op basis van de visie op Wijdemeren in 2040 en de diverse trends en ontwikkelingen die op de gemeente afkomen zijn drie integrale kernopgaven geformuleerd:

  • A. Vitale en gezonde leefomgeving: behoud en versterking van de woon- en leefkwaliteit in de kernen en linten.
  • B. Ruimte voor ondernemerschap en bereikbaarheid: het vergroten van het verdienvermogen door ruimte te bieden voor (nieuwe) economische activiteiten en te investeren in bereikbaarheid.
  • C. Waardevol landschap: Vormgeven aan natuurbehoud, landschapsbeheer en vergroting van de biodiversiteit.

Voor onderhavig plan zijn voornamelijk de kernopgaven B en C relevant. Bij opgave B is specifiek over de agrarische sector het volgende beschreven: "De agrarische sector maakt een beperkt deel uit van onze gemeente. Door onder andere Natura 2000 en NNN (Natuurnetwerk Nederland) zijn in onze gemeente weinig volledig op agrarische bedrijfsvoering gerichte bedrijven actief. In overleg met de sector kijken we naar de mogelijkheden in de toekomst. Uiteraard kan de agrarische sector ook zelf invulling geven aan haar eigen toekomstperspectief."

Bij opgave C is, onder de ruimtelijke keuze 'transformatie agrarisch buitengebied' het volgende beschreven: "In de agrarische gebieden van Wijdemeren, zoals de Horstermeer en Kortenhoef komen verschillende opgaven bij elkaar. Zo zal op termijn de bodem in deze gebieden verder dalen, wat zorgt voor verzakking van woningen en infrastructuur en een hoge CO2- uitstoot als gevolg van veenoxidatie. Dit vraagt om een aanpassing van het grondgebruik, zowel in bebouwd gebied als in landelijk gebied. Bodemdaling willen we zoveel mogelijk afremmen, eventueel door het gebied te vernatten of door te werken met oplossingen zoals onderwaterdrainage. Maatregelen zullen ons landschap en het gebruik van ons landschap veranderen. Voor de agrarische sector kan dit leiden tot nieuwe kansen en aanpassing van handelspraktijken en het bedrijfsmodel. Voor Wijdemeren - en de regio als geheel - is het belangrijk dat er samenhangende maatregelen worden genomen en er voor agrariërs een toekomstperspectief komt wat duurzaam is en houvast geeft."

Toetsing

Door dit wijzigingsplan wordt het mogelijk om te voldoen aan zowel de eis als de wens tot het in praktijk brengen van kringlooplandbouw. Hiermee krijgt het bedrijf een duurzamer toekomstperspectief. Het bedrijfsmodel en de handelspraktijken worden aangepast op een veranderende omgeving. Dit is in lijn met het perspectief dat in de omgevingsvisie voor de landbouw wordt geschetst. Verder bevat de omgevingsvisie geen specifieke uitgangspunten over het uitbreiden van een agrarisch bouwperceel.

Conclusie

Onderhavig plan is in overeenstemming c.q. niet in strijd met de Omgevingsvisie Wijdemeren 2040.

Hoofdstuk 4 Toetsing aan wijzigingsregels

4.1 Algemeen

Voor de nieuwe mestopslag, de nieuwe werktuigenberging en de ruwvoeropslag is het nodig om de vorm van het bouwvlak te wijzigen. Door het gebrek aan ruimte binnen het huidige bouwvlak worden de nieuwe gebouwen achter de huidige bebouwing gesitueerd. Hierdoor is het nodig om het bouwvlak te vergroten.

Voor de beoogde verandering bevat het geldende bestemmingsplan een wijzigingsbevoegdheid. In het bestemmingsplan is namelijk binnen de bestemming 'Agrarisch met waarden - Natuur- en landschapswaarden' een wijzigingsbevoegdheid, artikel 4, lid 6, sublid 5, opgenomen voor het vergroten van bouwvlakken. Hieronder wordt deze bepaling aangehaald en vervolgens wordt het initiatief daaraan getoetst.

4.2 Vormwijziging

4.6.5 Vergroten bouwvlakken

Burgemeester en wethouders zijn bevoegd de bestemming van de in lid 4.1 bedoelde gronden te wijzigen ten behoeve van het vergroten van een bouwvlak met de bestemming Agrarisch met waarden - Natuur- en landschapswaarden met dien verstande dat:

  • a. aan de wijzigingsbevoegdheid uitsluitend gebruik mag worden gemaakt, indien de vergroting van het bouwvlak voor een doelmatige agrarische bedrijfsvoering en/of ontwikkeling noodzakelijk is;
  • b. de bestaande bij het agrarisch bedrijf behorende bebouwing binnen de gewijzigde bouwgrenzen gelegen blijft;
  • c. het bouwvlak mag worden vergroot tot maximaal 1,5 ha;
  • d. de afstand tot de weg in geen geval groter mag zijn dan 200 m;
  • e. de vergroting van het bouwvlak dient plaats te vinden aan de achterzijde van het bestaande bouwvlak;
  • f. vergroten van bouwvlakken is in geen geval toegestaan op gronden die zijn voorzien van de bestemming Natuur, of op gronden ter plaatse van de gebiedsaanduiding 'natura 2000 gebied';
  • g. is aangetoond dat er geen sprake is van externe effecten op natura 2000 gebieden.

Toetsing

  • a. Om te kunnen voorzien in de aanpassing van de (melk)rundveehouderij is de beoogde verandering noodzakelijk. De nieuwe bebouwing wordt gebruikt ten behoeve van de agrarische bedrijfsvoering.
  • b. In de nieuwe situatie zal er (uitpandig) niets veranderen aan de bestaande bebouwing. Met de beoogde vergroting van het bouwvlak zal de huidige bebouwing binnen de gewijzigde bouwgrenzen gelegen blijven.
  • c. Het huidige bouwvlak is 4258 m2 en de uitbreiding van het bouwvlak 5022 m2. Het nieuwe bouwvlak zal een totale oppervlakte krijgen van 9280 m2. Hiermee wordt voldaan aan de eis dat het bouwvlak vergroot mag worden tot maximaal 1,5 ha.
  • d. Het huidige bouwvlak is direct gesitueerd aan de weg. De vergroting van het bouwvlak vindt plaats aan de achterkant van het huidige bouwvlak. Hierdoor neemt het bouwvlak dus in lengte toe. De totale lengte van het nieuwe bouwvlak is circa 132 meter. Hiermee wordt ruimschoots voldaan aan de eis dat de afstand tot aan de weg in geen geval groter mag zijn dan 200 meter.
  • e. De vergroting van het bouwvlak vindt plaats aan de achterzijde van het bestaande bouwvlak. Er wordt aan deze eis voldaan.
  • f. Het plangebied heeft niet de bestemming Natuur en ligt verder niet in een gebiedsaanduiding 'natura 2000 gebied'. Derhalve is het wel toegestaan om het bouwvlak te vergroten.
  • g. Door EcoTierra is een quickscan flora en fauna uitgevoerd voor het plangebied. Hieruit is niet gebleken van externe effecten op Natura 2000-gebieden. Voor de overige, externe effecten geldt dat het agrarische bedrijf in het plangebied zal gaan opereren binnen de ruimte die de geldende natuurvergunning voor de locatie reeds biedt. In paragraaf 5.3 wordt dit nader toegelicht.

4.3 Conclusie

De beoogde vergroting van het bouwvlak voldoet aan de voorwaarden uit de wijzigingsbevoegdheid voor het vergroten van bouwvlakken. Hiermee is deze wijzigingsbevoegdheid toepasbaar voor het initiatief.

Hoofdstuk 5 Randvoorwaarden

5.1 Milieuaspecten

5.1.1 Inleiding

Op grond van artikel 3.1.6 van het Besluit ruimtelijke ordening (verder: Bro) moet de gemeente in de toelichting op het wijzigingsplan plan een beschrijving opnemen van de wijze waarop de milieukwaliteitseisen bij het plan zijn betrokken. Daarbij moet rekening gehouden worden met de geldende wet- en regelgeving en met de vastgestelde (boven)gemeentelijke beleidskaders. Bovendien is een wijzigingsplan vaak een belangrijk middel voor afstemming tussen de milieuaspecten en ruimtelijke ordening.

In deze paragraaf worden de resultaten van het onderzoek naar de milieukundige uitvoerbaarheid beschreven. Het betreft de thema's bodem, milieuzonering, geluid, luchtkwaliteit en externe veiligheid. Ook is een paragraaf gewijd aan het al dan niet noodzakelijk zijn van een milieueffectrapportage of milieueffectbeoordeling.

5.1.2 Bodem

Onderzocht moet worden of de bodem verontreinigd is en wat voor gevolgen een eventuele bodemverontreiniging heeft voor de uitvoerbaarheid van het plan. Een nieuwe bestemming mag pas worden opgenomen als is aangetoond dat de bodem geschikt (of geschikt te maken) is voor de nieuwe of aangepaste bestemming. Wanneer (een deel van) de bodem in het plangebied verontreinigd is, moet worden aangetoond dat het wijzigingsplan, rekening houdend met de kosten van sanering, financieel uitvoerbaar is. Bodemonderzoeken mogen in de regel niet ouder dan 5 jaar oud zijn. Uitzondering hierop zijn de plannen waar de bodem niet verdacht is op bodemverontreiniging en/of bodemonderzoeken de bodemkwaliteit voldoende weergeven en er geen onoverkomelijke problemen te verwachten zijn bij de bestemmingsplanwijziging.

Met onderhavig plan wordt niet voorzien in een nieuwe bestemming. Het betreft enkel de vergroting van het bouwvlak om nieuwe bebouwing te realiseren ten behoeve van de agrarische bedrijfsvoering. Verder is voor zover bekend de grond enkel gebruikt voor agrarische doeleinden. De bodemkwaliteit staat de uitvoerbaarheid van dit wijzigingsplan dan ook niet in de weg en er is geen reden om voor dit wijzigingsplan verkennend bodemonderzoek uit te voeren.

5.1.3 Bedrijven en milieuzonering

Zowel de ruimtelijke ordening als het milieubeleid stellen zich ten doel een goede kwaliteit van het leefmilieu te handhaven en te bevorderen. Dit gebeurt onder andere door milieuzonering. Onder milieuzonering verstaan we het aanbrengen van een voldoende ruimtelijke scheiding tussen milieubelastende bedrijven of inrichtingen enerzijds en milieugevoelige functies als wonen en recreëren anderzijds. De ruimtelijke scheiding bestaat doorgaans uit het aanhouden van een bepaalde afstand tussen milieubelastende en milieugevoelige functies. Die onderlinge afstand moet groter zijn naarmate de milieubelastende functie het milieu sterker belast.

Milieuzonering heeft twee doelen:

  • het voorkomen of zoveel mogelijk beperken van hinder en gevaar bij woningen en andere gevoelige functies;
  • het bieden van voldoende zekerheid aan bedrijven dat zij hun activiteiten duurzaam onder aanvaardbare voorwaarden kunnen uitoefenen.

Voor het bepalen van de aan te houden afstanden wordt de daarvoor algemeen aanvaarde VNG-uitgave 'Bedrijven en Milieuzonering' uit 2009 gebruikt. Deze uitgave bevat een lijst, waarin voor een hele reeks van milieubelastende activiteiten (naar SBI-code gerangschikt) richtafstanden zijn gegeven ten opzichte van milieugevoelige functies. De lijst geeft richtafstanden voor de ruimtelijk relevante milieuaspecten geur, stof, geluid en gevaar.

Onderhavige ontwikkeling voorziet alleen in het vergroten van het bouwvlak ten behoeve van de rundveehouderij. Daarom is er alleen sprake van uitwaartse zonering. Voor het geuraspect volgen de aan te houden afstanden uit de Wet geurhinder en veehouderij. Voor geur geldt dat in het plangebied alleen dieren worden gehouden waarvoor, vanuit de Wgv, vaste afstanden gelden. Voor rundvee geldt een aan te houden minimumafstand van 50 meter (van emissiepunt tot geurgevoelig object buiten de bebouwde kom). Het dichtstbijzijnde geurgevoelige object is de woning op de Rading 200. De kortste afstand van de rundveestal tot aan de woning is 52 meter. Hier wordt dus aan voldaan. Verder geldt ook voor de opslag van vaste mest een wettelijke minimumafstand. In het Activiteitenbesluit wordt een minimumafstand van 50 meter tot een geurgevoelig gebouw gegeven. De kortste afstand van de nieuwe vaste mestopslag tot aan de woning op de Rading 200 is 85 meter. Ook hier wordt aan voldaan.

Voor de overige milieuaspecten, waaronder stof, geluid en gevaar, zijn de richtafstanden uit de VNG-brochure 'Bedrijven en milieuzonering' gehaald. Voor het 'Fokken en houden van rundvee' wordt in de brochure een afstand gegeven voor stof en geluid van 30 meter. Aangezien de kortste afstand van de milieugevoelige functie op de Rading 200 tot aan milieubelastende functies op het plangebied minimaal 50 meter bedraagt, wordt ook aan de richtafstanden uit de VNG-brochure voldaan.

Ook de toekomstige woningbouwontwikkeling 'Ter Sype' zal geen hinder ondervinden door onderhavig plan. Deze ontwikkeling vindt namelijk op meer dan 500 meter vanaf het plangebied plaats. Hiermee wordt ruimschoots aan de vaste afstanden en de richtafstanden gedaan.

Milieuzoneringen vormen geen belemmering voor de uitvoerbaarheid van onderhavig plan.

5.1.4 Geluid

Op basis van de Wet geluidhinder (Wgh) zijn er drie geluidsbronnen waarmee bij de planologische medewerking aan nieuwe ontwikkelingen rekening gehouden dient te worden: wegverkeers-, railverkeers- en industrielawaai. Het plangebied is alleen gelegen binnen de invloedssfeer van een verkeersweg: de Rading. Dit is een doodlopende weg waar aan het eind de Rading 198 en 200 de enige erven zijn. Derhalve is geluidhinder door wegverkeer verwaarloosbaar, aangezien de bewoners van deze erven vrijwel de enige weggebruikers zijn op het doodlopende deel van de weg. Verder voorziet dit plan niet in de realisatie van nieuwe geluidgevoelige functies. Akoestisch onderzoek is derhalve niet noodzakelijk.

5.1.5 Luchtkwaliteit

In de Wet milieubeheer (verder: Wm) zijn eisen opgenomen waaraan de luchtkwaliteit in de buitenlucht moet voldoen. Hierbij is onderscheid gemaakt in grenswaarden waaraan nu moet worden voldaan en grenswaarden waaraan in de toekomst moet worden voldaan. De meest kritische stoffen zijn stikstofdioxide en fijn stof. Aan de andere stoffen die in de Wet worden genoemd wordt in Nederland, behoudens bijzondere situaties, overal voldaan.

Op grond van artikel 5.16 Wm kan de gemeenteraad een wijzigingsplan met mogelijke gevolgen voor de luchtkwaliteit alleen vaststellen wanneer aannemelijk is gemaakt dat:

  • het wijzigingsplan niet leidt tot het overschrijden van de in de wet genoemde grenswaarden, of
  • de luchtkwaliteit als gevolg van het wijzigingsplan per saldo verbetert of ten minste gelijk blijft, of, bij een beperkte toename, door een met de ontwikkeling samenhangende maatregel of effect, per saldo verbetert, of
  • het wijzigingsplan niet in betekenende mate bijdraagt aan de concentratie van een stof waarvoor in de wet grenswaarden zijn opgenomen, of
  • de ontwikkeling is opgenomen of past in het Nationaal Samenwerkingsprogramma Luchtkwaliteit.

In de 'Regeling niet in betekenende mate bijdragen (luchtkwaliteitseisen)' zijn categorieën van gevallen aangewezen die in ieder geval niet in betekenende mate bijdragen aan de luchtverontreiniging. Wanneer een ontwikkeling valt onder één van die categorieën is het niet nodig een onderzoek naar de luchtkwaliteit uit te voeren.

Het bouwplan voorziet in nieuwe bebouwing voor een toegestane en aanwezige functie. De nieuwe bebouwing leidt niet of slechts tot een fractie van de verkeersbewegingen die projecten kunnen veroorzaken die onder de 'Regeling niet in betekenende mate bijdragen (luchtkwaliteitseisen)' vallen, zoals bijvoorbeeld 1.500 woningen (netto) bij minimaal 1 ontsluitingsweg. Derhalve is het niet nodig luchtkwaliteitsonderzoek uit te voeren voor dit wijzigingsplan.

Met behulp van de Grootschalige Concentratie- en Depositiekaarten Nederland van het RIVM is de luchtkwaliteit in beeld gebracht om te bepalen of ter plaatse van het plangebied sprake is van een goed woon- en leefklimaat. In het plangebied en de omgeving bedraagt de concentratie ten aanzien van PM 2,5 <10 ug/m3. Voor PM10 en NO2 bedraagt de concentratie respectievelijk <18 ug/m3 en 15-20 ug/m3. Hiermee wordt ruimschoots aan de streefwaarden voldaan (20 ug/m3 voor PM2,5, 40 ug/m3 voor PM10 ug/m3 en 40 ug/m3 voor NO2). De kaarten voor 2030 laten zien dat dit nog verder gaat verbeteren. Ook vanuit het oogpunt van een goede ruimtelijke ordening en gelet op de luchtkwaliteit gaat dan ook sprake zijn van een goed woon- en leefklimaat in de nieuwe woning.

afbeelding "i_NL.IMRO.1696.WP24Rading1982021-on01_0008.jpg"

Uitsnede Grootschalige Concentratie- en Depositiekaarten Nederland: PM2,5 in 2020

afbeelding "i_NL.IMRO.1696.WP24Rading1982021-on01_0009.jpg"

Uitsnede Grootschalige Concentratie- en Depositiekaarten Nederland: PM10 in 2020

afbeelding "i_NL.IMRO.1696.WP24Rading1982021-on01_0010.jpg"

Uitsnede Grootschalige Concentratie- en Depositiekaarten Nederland: NO2 in 2020

5.1.6 Externe veiligheid

Het beleid voor externe veiligheid is gericht op het verminderen en beheersen van risico's van zware ongevallen met gevaarlijke stoffen in inrichtingen en tijdens het transport ervan. Op basis van de criteria zoals onder meer gesteld in het Besluit externe veiligheid inrichtingen worden bedrijven en activiteiten geselecteerd die een risico van zware ongevallen met zich mee (kunnen) brengen. Daarbij gaat het vooral om de grote chemische bedrijven. Ook kleinere bedrijven als LPG-stations, opslagen van bestrijdingsmiddelen, buisleidingen, transportactiviteiten en luchtverkeer zijn als potentiële gevarenbron aangemerkt.

Er zijn in de omgeving van het besluitgebied geen risicovolle inrichtingen, transportroutes voor gevaarlijke stoffen of buisleidingen aanwezig, waarvan de risicocontouren het plangebied beïnvloeden. Wel ligt naast het plangebied luchthaven Hilversum. Voor het vliegveld geldt zowel een plaatsgebonden risicocontour van 10-5 en 10-6. Uit onderstaande uitsnede blijkt dat het plangebied niet binnen deze risicocontouren gelegen is.

afbeelding "i_NL.IMRO.1696.WP24Rading1982021-on01_0011.jpg"

Uitsnede Omgevingsverordening NH2020 met de risicocontouren van luchthaven Hilversum

Het plangebied ligt niet binnen een indicatieve veiligheidszone van een hoogspanningslijn, waarbinnen beperkingen gelden voor het oprichten van stralingsgevoelige objecten. Volgens de gegevens op de website antenneregister.nl zijn er in de omgeving van het plangebied geen zendmasten aanwezig die overschrijdingen kunnen veroorzaken van de geldende blootstellingslimieten voor elektrische en magnetische veldsterkten.

Externe veiligheidsrisico's staan de uitvoerbaarheid van onderhavig plan niet in de weg.

5.1.7 Milieueffectrapportage

In de bijlage van het Besluit m.e.r. is aangegeven welke activiteiten in het kader van het de ruimtelijke onderbouwing plan-m.e.r.-plichtig (onderdelen C en D), project-m.e.r.-plichtig (onderdeel C) of m.e.r.-beoordelingsplichtig (onderdeel D) zijn. Voor deze activiteiten zijn in het Besluit m.e.r. drempelwaarden opgenomen. In de bijlage van het Besluit m.e.r. is in categorie D (14) opgenomen: de oprichting, wijziging of uitbreiding van een installatie voor het fokken, mesten of houden van dieren. De relevante drempelwaarden voor een formele m.e.r.-beoordeling in het Besluit m.e.r. zijn:

  • 340 stuks melk-, kalf- en zoogkoeien ouder dan 2 jaar en vrouwlijk jongvee tot 2 jaar (Rav cat. A 1, A 2 en A 3),
  • meer dan 2000 stuks schapen of geiten (Rav cat. B.1 en C.1 t/m C.3).

Het planvoornemen ligt ruimschoots onder de drempelwaarden uit het Besluit m.e.r. en is daarmee niet rechtstreeks plan-m.e.r.-, project-m.e.r. of m.e.r.-beoordelingsplichtig. Omdat het planvoornemen wel een activiteit (uitbreiding pluimvee en vleesrunderen) betreft zoals genoemd in lijst D is een vormvrije m.e.r. beoordeling nodig.

Het planvoornemen betreft het veranderen van de vorm van het bouwvlak, zodat voorzien kan worden in een nieuwe werktuigenberging, vaste mestopslag en ruwvoeropslag ten behoeve van de agrarische bedrijfsvoering. In de vergunde situatie is de veebezetting als volgt:

  • Melk- en kalfkoeien (A1.100.1): 84 dieren.
  • Vrouwelijk jongvee tot 2 jaar (A.3): 36 dieren.
  • Schapen (B.1): 70 dieren.

In de nieuwe situatie blijft de veebezetting gelijk. Hierdoor kan op voorhand geconcludeerd worden dat er geen (nieuwe) negatieve milieugevolgen aan de orde zijn door onderhavig plan. Daarmee hoeft er geen m.e.r.-procedure te worden doorlopen.

5.2 Archeologie, cultuurhistorie en monumenten

Het plangebied heeft deels de dubbelbestemming 'Waarde - Archeologie 4' en 'Waarde - Archeologie 5'. Door Synthegra B.V. is een archeologisch onderzoek uitgevoerd. Dit betreft een bureauonderzoek en inventariserend veldonderzoek. Het onderzoek is opgenomen als Bijlage 2 bij de toelichting. Het doel van het archeologisch bureauonderzoek was het opstellen van een gespecificeerde archeologische verwachting voor het plangebied. Voor het plangebied gold op basis van het bureauonderzoek een hoge verwachting voor vuursteenvindplaatsen uit het laat-paleolithicum en mesolithicum en een middelhoge of lage verwachting op nederzettingsresten uit het neolithicum tot en met de Romeinse tijd. Daarnaast gold er een lage verwachting voor ontginningssporen en landbouw voor de Middeleeuwen tot en met de Nieuwe Tijd. Het doel van het inventariserend veldonderzoek is het toetsen van deze verwachting.

Uit het veldonderzoek is gebleken dat in geen van de boringen indicatoren zijn aangetroffen die wijzen op de aanwezigheid van een archeologische vindplaats. De kans dat binnen het plangebied een archeologische vindplaats aanwezig is, wordt daarom klein geacht. De verwachting is dat binnen het plangebied geen archeologische resten in situ aanwezig zijn, waardoor ook geen archeologische resten worden bedreigd door de voorgenomen ontwikkeling van het gebied.

Op basis van de resultaten van het onderzoek adviseert Synthegra B.V. dat een nader archeologisch onderzoek niet noodzakelijk is voor de uitvoering van onderhavig plan.

De aanwezigheid van archeologische sporen of resten in het plangebied kan nooit volledig worden uitgesloten. Indien tijdens de werkzaamheden een (mogelijke) archeologische vondst wordt gedaan dan geldt de wettelijke meldingsplicht, zoals omschreven in artikel 5.10 van de Erfgoedwet. Uit praktisch oogpunt kan een dergelijke toevalsvondst bij de gemeente worden gemeld.

Volgens de Leidraad Landschap en Cultuurhistorie van de provincie Noord-Holland ligt het plangebied binnen “veenrivieren- en veenpolderlandschap met slotenpatroon” en specifiek binnen de veerverkaveling ‘De Ster van Loosdrecht’. De verkaveling met bijbehorende sloten heeft daarvan de belangrijkste cultuurhistorische waarde. Deze wijziging heeft daar geen invloed op. De nieuwe bebouwing doorkruisen het verkavelingspatroon niet en de sloten rond het plangebied blijven behouden.

Monumenten zijn niet aanwezig in het plangebied.

5.3 Ecologie

Door EcoTierra is een quickscan flora en fauna uitgevoerd voor het plangebied. Deze is opgenomen in Bijlage 3 van deze toelichting.

Gebiedsbescherming

Het plangebied is gelegen nabij het Natura2000-gebied Oostelijke Vechtplassen. Door de aard (beperkt en kortstondig) van de ingreep, de reeds bestaande verstoring door de aanwezige bebouwing en menselijke activiteiten op het perceel en de onderlinge afstand van ruim 500 meter wordt er geen rechtstreekse aantasting (veroorzaakt door bijvoorbeeld licht, trillingen, geluid of menselijke aanwezigheid) verwacht op soorten die voor het genoemde Natura 2000-gebied zijn aangewezen.
Thema’s als vermesting/ verzuring (stikstof) en verdroging vallen niet onder de reikwijdte van onderhavige quickscan flora en fauna.
Er zullen in het kader van de voorgenomen ingrepen geen bomen/ groenstructuren worden gekapt/ gerooid. Het onderdeel ‘houtopstanden’ van de Wet natuurbescherming is derhalve niet van toepassing.

In de quickscan is beschreven dat er in het kader van de Wet natuurbescherming mogelijk een AERIUS-berekening uitgevoerd dient te worden voor wat betreft stikstof. Dit is echter niet nodig. Met de verplaatsing van het agrarische bedrijf naar de locatie aan de Rading 198, wordt binnen de bestaande, geldende natuurvergunning voor die locatie gebleven. De veebezetting op de locatie wordt niet anders of groter dan waarin de geldende natuurvergunning reeds voorziet. Signifant negatieve effecten op voor verzuring en vermesting gevoelige habitats in Natura 2000-gebieden zijn daarmee niet aan de orde.

Soortenbescherming

Uit de quickscan blijkt dat beschermde flora en fauna de uitvoerbaarheid van dit wijzigingsplan niet in de weg staan. Het plangebied herbergt geen sterk beschermde soorten of verblijfsplaatsen en het herbergt ook geen essentieel leef- of foerageergebied. Wel is het raadzaam om bij de realisatie te werken buiten het broedseizoen van vogels zonder jaarrond beschermd nesten. Ook heeft de steenuil mogelijk een nestlocatie in een bestaand gebouw. Doordat er geen ingrepen aan/in dat gebouw zullen plaatsvinden zal een eventueel aanwezige nestlocatie niet worden aangetast. Voor de opstal waar de vermoedelijke nestplaats zich bevindt zal een overdekte mestopslag gerealiseerd worden. Er zullen geen significant verstorende werkzaamheden in de opstal plaatsvinden waardoor de mogelijk aanwezige nestlocatie van de steenuil dermate wordt verstoord dat het exemplaar zal verhuizen. Er zal geen essentieel leefgebied van de steenuil verloren gaan door de beoogde ingrepen. Om een eventueel aanwezig broedgeval in de opstal niet te verstoren tijdens de bouw van de opstallen dienen deze werkzaamheden buiten de kwetsbare voortplantingsperiode van de steenuil plaats te vinden. Deze periode loopt globaal van februari tot en met juli.

Advies natuurinclusief bouwen

Bij de nieuwbouw kan rekening worden gehouden met soorten door nestkasten voor de huismus, huiszwaluw en vleermuizen in te bouwen of aan te brengen. Over dit zogenaamde natuur-inclusief bouwen is tegenwoordig veel te vinden op internet. Een goede site om informatie en inspiratie op te doen is www.bouwnatuurinclusief.nl. Het is raadzaam om wel een ecoloog of ter zake kundige bij aanschaf en plaatsing te betrekken. De maatregelen ten aanzien van natuurinclusief bouwen zullen in het kader van de bouwplanuitwerking verder worden uitgewerkt.

5.4 Waterparagraaf

Met dit wijzigingsplan wordt extra bebouwing opgericht in een agrarisch gebied waar relatief weinig bebouwing aanwezig is. Het betreft een gebouw ter opslag van vaste mest, een berging voor werktuigen en een ruwvoeropslag. Hemelwater kan en zal blijven infiltreren in de bodem. In het plangebied is geen toename van verhard oppervlak verwacht die groter is dan 1500 m2. Daarmee is er geen aanleiding om waterbergende maatregelen te treffen. Op basis van het gemeentelijk beleid is het wel gewenst dat voor elke m2 aan verhard oppervlak 40 mm aan waterberging gerealiseerd te worden.

In het plangebied is geen oppervlaktewater aanwezig. Rond het plangebied zijn sloten aanwezig, die voor de afwatering zorgen. Dit betreffen C-watergangen. Deze wijziging heeft geen gevolgen op het functioneren van deze watergangen.

Tevens is voor onderhavig plan advies gevraagd aan het Waterschap AGV. Het waterschap heeft aangegeven akkoord te zijn met onderhavig plan. Daarbij heeft het waterschap het volgende in overweging genomen:

  • De toename verharding en bebouwing wordt geschat op maximaal 1500 m2. Dit plangebied is aangewezen in de Keur 2019 als Landelijk gebied. De verplichting om verharding en bebouwing te compenseren geldt hier voor een toename verharding vanaf 5000 m2.
  • Er geldt wel een zorgplicht waarbij AGV graag wil zien dat de initiatiefnemer van het plan zoveel voorziet in het vasthouden van hemelwater op het eigen perceel. Hier wordt aan voldaan omdat de gemeente Wijdemeren een bergingseis van 40 mm hanteert voor elke vierkante meter dat de verharding toeneemt. Met deze bergingseis is in het plan rekening gehouden.
  • Het plan omvat de verhuizing van een agrarisch bedrijf. Het oorspronkelijke perceel (Nieuw Loosdrechtsedijk 179-181) komt ten goede aan Natura 2000 plannen van de provincie NH.
  • Het bestaande watersysteem in de omgeving wordt niet beïnvloed door dit plan.
  • Er zijn geen belangrijke waterkeringen in de buurt.
  • Het waterschap AGV adviseert om het plan te toetsen aan (toekomstige) overstromingsrisico’s als gevolg van klimaatverandering. Dit kan op de website: www.mijnwaterrisicoprofiel.nl.

afbeelding "i_NL.IMRO.1696.WP24Rading1982021-on01_0012.jpg"

Uitsnede waterrisicoprofiel

Uit het waterrisicoprofiel blijkt dat het bedrijf in de huidige situatie globaal gezien een kans heeft van 1/100 jaar dat het bedrijf onbereikbaar zal zijn door een hoge waterstand. De kans dat de bedrijfslocatie tijdelijk onbruikbaar wordt door een overstroming is nog kleiner. De situatie in 2050 (gele lijn) laat zien dat deze kans alleen maar kleiner wordt, namelijk 1/10000. Dit is een aanvaardbaar risico, en geeft geen aanleiding tot het nemen van (extra) maatregelen.

Negatieve effecten op de waterhuishouding zijn niet aan de orde.

5.5 Vliegverkeer

Het plangebied is gelegen nabij Vliegveld Hilversum. Het Besluit burgerluchthavens bepaalt in artikel 9 dat het luchthavenbesluit in ieder geval geluidcontouren van 48, 56 en 70 dB(A) Lden bevat. Het plangebied is gelegen binnen de 48 dB(A) geluidcontour van de luchthaven. Dit wijzigingsplan voorziet echter niet in nieuwe, geluidgevoelige objecten. Derhalve vormt dit ook geen belemmering voor het plan.

afbeelding "i_NL.IMRO.1696.WP24Rading1982021-on01_0013.jpg"

Uitsnede Omgevingsverordening NH2020 met de 48 dB(A) geluidcontour van luchthaven Hilversum

Verder ligt het plangebied in een hoogtebeperkingengebied. Vanaf 40 meter ten opzichte van het maaiveld van het vliegveld gelden hier beperkingen voor het realiseren van nieuwe bouwwerken. Dit plan voorziet niet in nieuwe bouwwerken die hoger zijn dan 40 meter. Dit vormt dus geen belemmering voor onderhavig plan.

afbeelding "i_NL.IMRO.1696.WP24Rading1982021-on01_0014.jpg"

Uitsnede Bijlagen Verordening Luchthavenbesluit Hilversum met de hoogtebeperkingen in en nabij start- en landingsbanen

5.6 Economische uitvoerbaarheid

Op grond van artikel 6.12, eerste lid van de Wet ruimtelijke ordening (Wro) stelt de gemeenteraad een exploitatieplan vast voor gronden waarop een bouwplan is voorgenomen dat in het Besluit ruimtelijke ordening (Bro) is aangewezen. Onderhavig wijzigingsplan voorziet niet een bouwplan in de zin van de Bro. Derhalve is het vaststellen van een exploitatieplan niet noodzakelijk.

Met de initiatiefnemer is een overeenkomst gesloten. Hierin is geregeld dat alle kosten die samenhangen met de onderhavige wijziging van het bestemmingsplan voor rekening komen van initiatiefnemer. Deze herziening heeft derhalve voor de gemeente geen financiële gevolgen.

Hoofdstuk 6 Juridische planopzet

De wijzigingsbevoegdheid voor het veranderen van vorm van het agrarische bouwvlak betreft alleen het veranderen van de aanduidingen op de plankaart c.q. verbeelding. Met dit plan wordt dan ook alleen de plankaart van het bestemmingsplan 'Loosdrecht landelijk gebied noordoost - 2012' gewijzigd. Het huidige bouwvlak wordt aan de achterkant, gezien vanaf de weg, vergroot met 5022 m2. Tevens zijn de geldende archeologische dubbelbestemmingen overgenomen. Met dit wijzigingsplan wordt dan ook niet in nieuwe bestemmingsregels voorzien. De geldende regels blijven onverkort gelden.

Toch bevat dit plan regels. In artikel 1 zijn drie definities opgenomen (plan, wijzigingsplan, bestemmingsplan), om dit wijzigingsplan goed te definiëren en om daarbij de juridische binding met bestemmingsplan 'Loosdrecht landelijk gebied noordoost - 2012' aan te geven. Uit de definitie voor wijzigingsplan volgt dat de plankaart van toepassing is. In artikel 2 is aangegeven dat de plankaart van dit wijzigingsplan de plankaart van het bestemmingsplan 'Loosdrecht landelijk gebied noordoost - 2012' geheel vervangt, voor zover het gaat om de gronden die in het wijzigingsplan zijn betrokken.

Wettelijk zijn voor wijzigingsplannen overgangsregels en een anti-dubbeltelbepaling voorgeschreven. Deze zijn opgenomen in de artikelen 3 en 4. Verder heeft dit plan een eigen slotregel: artikel 5.

Hoofdstuk 7 Inspraak en overleg

7.1 Vooroverleg

Het concept van dit wijzigingsplan zal worden toegezonden aan de provincie Noord-Holland en Waterschap Amstel, Gooi en Vecht in het kader van het overleg ex artikel 3.1.1 van het Besluit ruimtelijke ordening. De uitkomsten van het vooroverleg zullen te zijner tijd in deze paragraaf worden verwerkt.

7.2 Voorontwerp

De ontwikkeling die dit plan mogelijk maakt, heeft een beperkte invloed op zijn omgeving. Daarom heeft geen voorontwerp van dit plan voor inspraak ter inzage gelegen. De eigenaar van het naar het plangebied te verplaatsen bedrijf heeft de naastgelegen agrariër, het bedrijf aan de Rading 200, geïnformeerd over de toen aanstaande bestemmingsplanwijzing. Dit heeft geen aanleiding gegeven tot het aanpassen van het voornemen of dit wijzigingsplan.

7.3 Ontwerp

Het ontwerp van dit wijzigingsplan heeft van [P.M.] tot en met [P.M.] ter inzage gelegen. Toen zijn [P.M.] zienswijzen ingediend.